254 Fussell Rd.Leesburg, GA 31763




Mortgage Calculator
Monthly Payment (Est.)
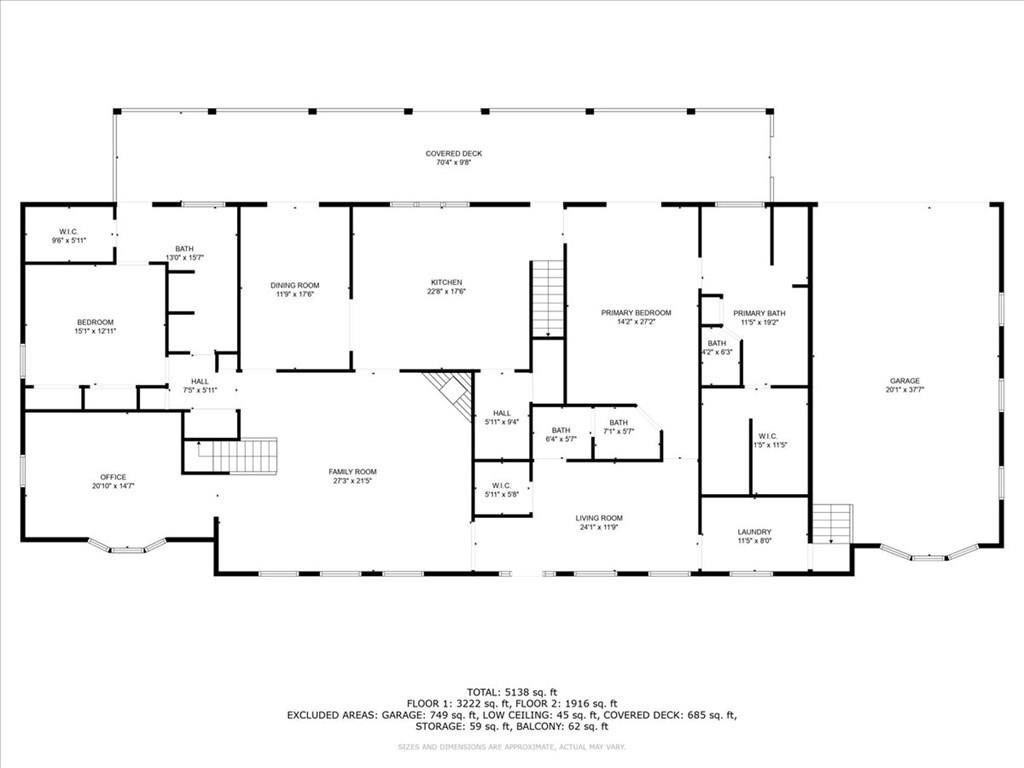
$3,764Discover the perfect blend of elegance and country living on 17.42 acres featuring a private pond, guest house, and premier equestrian amenities. The 5,600 sq ft main home boasts a luxurious owner's suite with steam shower, jacuzzi, and walk-in closet, plus a private in-law suite for multi-generational comfort. Upstairs offers 3 bedrooms and a media room with balcony views. The gourmet kitchen shines with custom cabinetry, oversized island, and walk-in pantry, while the great room with stone fireplace, formal dining, and living spaces are made for entertaining. Relax on wide front and back porches, by the in-ground pool, or in the 700 sq ft guest house. Horse enthusiasts will love the 7-stall barn with tack room, fenced pastures, corral, wired workshop, and pole barn. A pool house/office adds versatility, and a 2019 metal roof ensures peace of mind. This rare retreat combines luxury, space, and functionality—ready for its next owner to make it home.
| 3 months ago | Listing updated with changes from the MLS® | |
| 5 months ago | Listing first seen on site |
Listing information is provided by Participants of the Tift Area Board of REALTORS. IDX information is provided exclusively for personal, non-commercial use, and may not be used for any purpose other than to identify prospective properties consumers may be interested in purchasing. Information is deemed reliable but not guaranteed. Copyright 2025, Tift Area Board of REALTORS
Last checked 2025-12-27 02:36 PM UTC


Did you know? You can invite friends and family to your search. They can join your search, rate and discuss listings with you.